Ufficio in affitto

Monza, Viale Sicilia
€ 1.750 / mese
1 locale 1 locale
139 Mq 139 Mq
1 bagno 1 bagno

Ufficio in affitto

Monza, Viale Sicilia

Descrizione annuncio

COSA SAPERE DELL'IMMOBILE

PER INFORMAZIONI ED APPUNTAMENTI CHIAMA 039 636 11 75

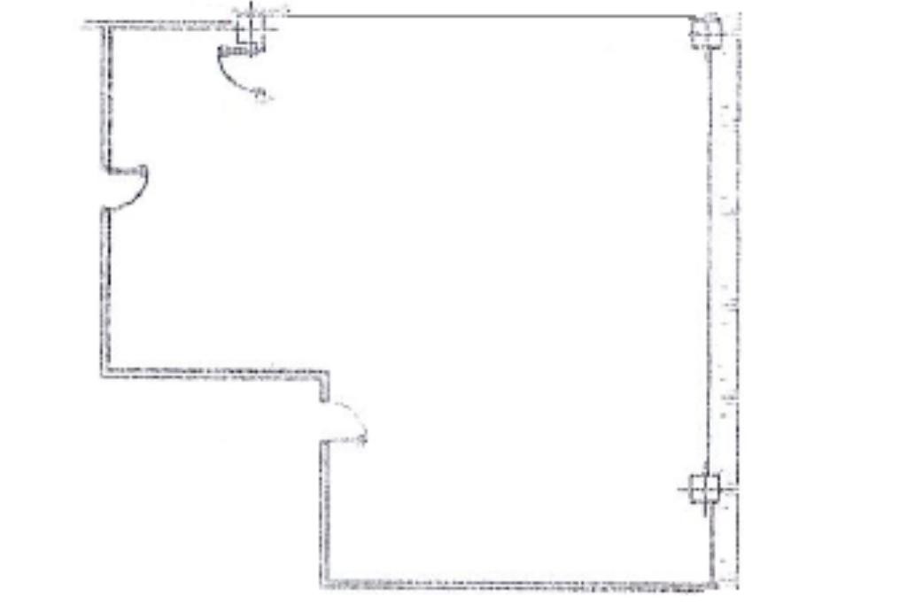
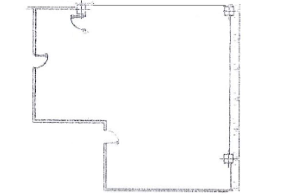
Proponiamo esclusivamente in affitto un ufficio con superficie di circa 139 metri quadrati, disposto al primo piano di un edificio.

DESCRIZIONE E PARTICOLARITA'

L’ufficio misura circa 139 metri quadrati e gode di un servizio igienico (non a norma disabili). L'immobile presenta l’impianto elettrico e di illuminazione, l’impianto di riscaldamento e di condizionamento autonomo, l’impianto d’allarme e di videosorveglianza, l’antincendio ad estintori, i rilevatori antincendio e l’anello antincendio condominiale. L’ufficio è inoltre dotato della ventilazione meccanica, della porta blindata, del controllo accessi, dell’uscita e luci di emergenza ed è cablato.

UBICAZIONE E CONTESTO

L'ufficio si trova in una zona centrale nel Comune di Monza. Esternamente sono presenti diversi posto auto pubblici.

Mostra tutto

Nelle vicinanze

Trasporto pubblico Trasporto pubblico
Villasanta
Villasanta
2,9 Km
Trasporto pubblico
240 m
Z323 Vimercate-Cologno Nord
Z323 Vimercate-Cologno Nord
290 m
Monza Sobborghi
Monza Sobborghi
2,7 Km
Ricariche auto elettriche Ricariche auto elettriche
Concessionario Nissan Renord
430 m
Iper Monza
930 m
Eurospin Monza Stucchi
980 m
LIDL Concorezzo
1,2 Km
ALDI Concorezzo
1,4 Km
Scuole Scuole
Scuola Primaria Alessandro Manzoni
1,1 Km
Scuola Primaria Don Gnocchi
1,1 Km
Scuola Secondaria di primo grado Leonardo Da Vinci
1,3 Km
Scuola Primaria Iqbal Masih
1,4 Km
Scuola Secondaria di primo grado Giovanni Pascoli
1,4 Km
Farmacia Farmacia
Iper Farma
870 m
Farmacia Comunale n° 6
1,3 Km
Farmacia Comunale n. 4
1,3 Km
Farmacia Cederna
1,8 Km
Farmacia dei Mille
1,8 Km
Ospedali Ospedali
Policlinico di Monza
2,0 Km
Supermercati Supermercati
Iper
880 m
Iper Express
920 m
EuroSpin
930 m
Coop
1,2 Km
Aldi
1,4 Km
Negozi Negozi
Stock Abbigliamento
40 m
Wheelup Monza
360 m
Mario Baldrighi
790 m
Bazar Exchange
820 m
Gastronomia Arosio
1,5 Km
Bar Bar
Movida Monza
1,1 Km
Fantasy Dance Line
1,1 Km
Tony e Dany
1,5 Km
ModY's Bar
1,7 Km
Mino's Café
2,3 Km
Ristoranti Ristoranti
Ristoranti
160 m
Chiringuito
810 m
Yami Sushi
850 m
Road House
980 m
Il Granaio
1,3 Km
Mostra tutto

Caratteristiche

Rif.:
61146003
Piano:
1 di 1 con ascensore (Piano alto)
Posti auto:
1
Condizionamento:
Autonomo
Ascensore:
Riscaldamento:
Autonomo
Mostra tutto
Prezzo Prezzo
€ 1.750 / mese
Spese annue Spese annue
€ 0

Altre caratteristiche

Descrizione dei locali
Bagno Con Finestra

Classe Energetica

Questo immobile è esente da classe energetica
Anno di costruzione:
1980
Riscaldamento:
Autonomo
Tipo impianto:
Ad aria
Tipo alimentazione:
Aria

Ti interessa visionare l'immobile?

Fissa un appuntamento  Fissa un appuntamento

Richiedi informazioni

Clicca su Leggi per aprire l'informativa
* Questi campi sono obbligatori
Affiliato
Industriale Vimercate Srl
Via Lecco, 95 20864 Agrate Brianza (MB)

Il nostro staff


  • Stella Fumagalli
    Coordinatrice

  • Marco Presta
    Collaboratore

  • Andrea Pedrocchi
    Affiliato
Via Lecco, 95 20864 Agrate Brianza (MB)
Zona: Vimercate
Mostra su mappa
Affiliato
Industriale Vimercate Srl
Via Lecco, 95 20864 Agrate Brianza (MB)

2025 Tecnocasa Franchising S.p.A. - P. IVA 08365160152 - Via Monte Bianco 60/A 20089 Rozzano (MI). Ogni agenzia ha un proprio titolare ed è autonoma. Privacy policy | Policy utilizzo | Cookie policy