Capannone in vendita

Concorezzo, Via dell'Artigianato
€ 400.000
2 locali 2 locali
460 Mq 460 Mq
3 bagni 3 bagni

Capannone in vendita

Concorezzo, Via dell'Artigianato

Descrizione annuncio

COSA SAPERE DELL'IMMOBILE

PER INFORMAZIONI ED APPUNTAMENTI CHIAMA 039 636 11 75

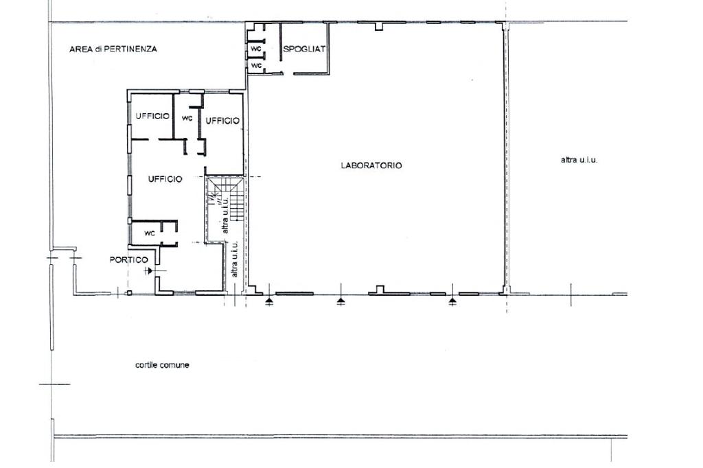
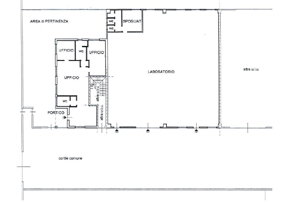
Il capannone proposto esclusivamente in vendita misura circa 370 metri quadrati a cui si aggiungono circa 90 metri quadrati di uffici al piano terra. L'immobile non dispone di un'area esterna ad uso esclusivo.

DESCRIZIONE E PARTICOLARITA'

Il capannone misura circa 370 metri quadrati, ha un’altezza di circa 7,80 metri e un’altezza sottotrave di circa 6,00 metri; ha una lunghezza di 18,52 metri, una larghezza di 19,85 metri e dispone di un portone con altezza di circa 4,50 metri e di un cancello. La struttura è dotata dell’impianto elettrico e di illuminazione (a led), dell’impianto di riscaldamento a radiatori (solo negli uffici) e delle predisposizioni degli impianti d’allarme e di videosorveglianza. Adiacenti al capannone, con ingresso separato, troviamo circa 90 metri quadrati di uffici più tre servizi igienici di cui uno a norma disabili. L'immobile non dispone di un'area esterna ad uso esclusivo, ma è comunque garantita la possibilità di carico e scarico.

UBICAZIONE E CONTESTO

Il capannone si trova nel Comune di Concorezzo, a pochi minuti dall’ingresso della tangenziale A51 e a 10 minuti dall’ingresso dell’A4 di Agrate Brianza.

Mostra tutto

Nelle vicinanze

Trasporto pubblico Trasporto pubblico
Villasanta
Villasanta
2,4 Km
Trasporto pubblico
430 m
Z323 Cologno Nord-Vimercate
Z323 Cologno Nord-Vimercate
530 m
Ricariche auto elettriche Ricariche auto elettriche
ALDI Concorezzo
530 m
LIDL Concorezzo
550 m
Iper Monza
950 m
Concessionario Nissan Renord
1,1 Km
Eneldrive Esselunga Monza
1,1 Km
Scuole Scuole
Scuola Primaria Don Gnocchi
580 m
Scuola Secondaria di primo grado Leonardo Da Vinci
990 m
Scuola Primaria Guglielmo Marconi
1,4 Km
Istituto Tecnico Statale Commerciale e per Geometri Achille Mapelli
1,5 Km
Scuola d'Infanzia Cuore Immacolato di Maria
1,9 Km
Farmacia Farmacia
Iper Farma
920 m
Farmacia Comunale n° 6
1,9 Km
Farmacia Comunale n. 4
2,2 Km
Farmacia Comunale n. 3
2,2 Km
Farmacia Cederna
2,3 Km
Ospedali Ospedali
Policlinico di Monza
2,3 Km
Supermercati Supermercati
Aldi
550 m
Coop
730 m
Iper Express
830 m
Iper
940 m
Esselunga di Viale Libertà
1,1 Km
Negozi Negozi
Stock Abbigliamento
840 m
Wheelup Monza
1,0 Km
Bazar Exchange
1,1 Km
Mario Baldrighi
1,1 Km
Gastronomia Arosio
1,8 Km
Bar Bar
Fantasy Dance Line
1,6 Km
Movida Monza
1,6 Km
ModY's Bar
1,7 Km
Samoa Lounge Bar
1,8 Km
Tony e Dany
1,9 Km
Ristoranti Ristoranti
Argentèe
390 m
Chiringuito
480 m
Il Granaio
480 m
Ristoranti
500 m
Pizza Pazza a pezzi
920 m
Mostra tutto

Caratteristiche

Rif.:
61117740
Piano:
Terra di 1
Totale piani:
1
Condizionamento:
Assente
Ascensore:
No
Riscaldamento:
Autonomo
Mostra tutto
Prezzo Prezzo
€ 400.000
Rata mutuo Rata mutuo
€ 1.833 / mese
Spese annue Spese annue
€ 0
Proponi il tuo prezzoProponi il tuo prezzo

Altre caratteristiche

Descrizione dei locali
Bagno Con Finestra

Classe Energetica

E
E
E
E
E
E
E
E
E
EP globale non rinnovabile:
386.03 kW h/m² anno
EP globale rinnovabile:
0.00 kW h/m² anno
EP invernale del fabbricato:
EP estiva del fabbricato:
Anno di costruzione:
1988
Riscaldamento:
Autonomo
Tipo impianto:
A radiatori
Tipo alimentazione:
Metano

Ti interessa visionare l'immobile?

Fissa un appuntamento  Fissa un appuntamento

Richiedi informazioni

* Questi campi sono obbligatori

Calcola il tuo mutuo

Semplice e senza impegno
Anticipo

( % )
Mutuo

( % )

pochi semplici passi

inserisci i tuoi dati
Questionario completato
Grazie per aver richiesto un appuntamento senza impegno con un nostro Consulente del Credito e Assicurativo.

Hai inserito correttamente tutti i dati necessari e a breve riceverai una e-mail con un link da convalidare per inviare i tuoi dati.
Affiliato
Industriale Vimercate Srl
Via Lecco, 95 20864 Agrate Brianza (MB)

Il nostro staff


  • Stella Fumagalli
    Coordinatrice

  • Marco Presta
    Collaboratore

  • Andrea Pedrocchi
    Affiliato
Via Lecco, 95 20864 Agrate Brianza (MB)
Zona: Vimercate
Mostra su mappa
Affiliato
Industriale Vimercate Srl
Via Lecco, 95 20864 Agrate Brianza (MB)

2025 Tecnocasa Franchising S.p.A. - P. IVA 08365160152 - Via Monte Bianco 60/A 20089 Rozzano (MI). Ogni agenzia ha un proprio titolare ed è autonoma. Privacy policy | Policy utilizzo | Cookie policy