Ufficio in affitto

Burago Di Molgora, Via M. Luther King
€ 1.100 / mese
5 locali 5 locali
200 Mq 200 Mq
1 bagno 1 bagno

Ufficio in affitto

Burago Di Molgora, Via M. Luther King

Descrizione annuncio

PER MAGGIORI INFORMAZIONI ED APPUNTAMENTI CHIAMA 039 636 11 75

UBICAZIONE E CONTESTO

L'ufficio proposto esclusivamente in locazione si trova in una zona centrale del Comune di Burago. Esternamente sono presenti diversi posti auto pubblici.

DESCRIZIONE E PARTICOLARITA'

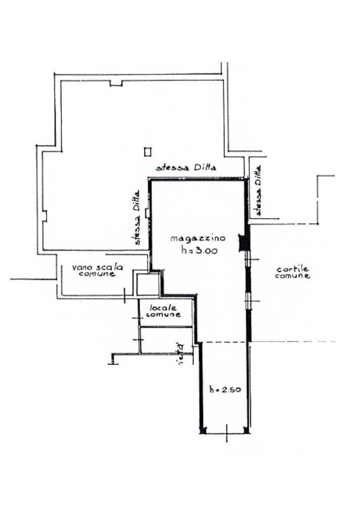
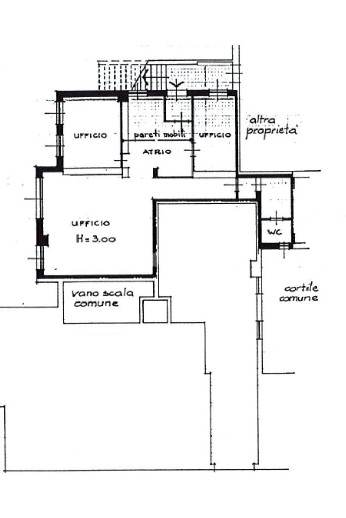
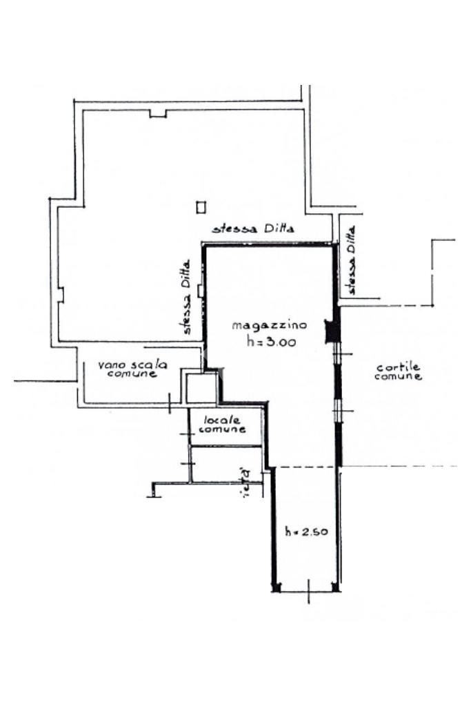
Ufficio di circa 200 metri quadrati, di cui 120 metri quadrati di ufficio, 65 metri quadrati di magazzino e 15 metri quadrati di box, in buone condizioni - Disposto al piano seminterrato di un edificio raggiungibile tramite scala - Un servizio igienico (non a norma disabili) - 1 box di circa 15 metri quadrati - IMPIANTI E DOTAZIONI: impianto di riscaldamento, elettrico e di illuminazione, impianto di allarme, anello antincendio condominiale, pavimento flottante, doppio ingresso e controllo accessi

ATTIVITA’ COMPATIBILI CON L’IMMOBILE: Studio professionale o attività d’ufficio

ATTIVITA’ NON IDONEE: Attività commerciali

CONDIZIONI DI LOCAZIONE

Contratto commerciale di 6 anni + 6 anni - Recesso anticipato con preavviso di 6 mesi - Deposito cauzionale di 3 mesi - Pagamento mensile - Spese condominiali di circa 1.200€ / annui - Immobile disponibile da subito

Mostra tutto

Nelle vicinanze

Trasporto pubblico Trasporto pubblico
Trasporto pubblico
320 m
Z322 Cologno Nord-Vimercate
Z322 Cologno Nord-Vimercate
810 m
Ricariche auto elettriche Ricariche auto elettriche
Esselunga di Vimercate
1,0 Km
U2 Supermercato Vimercate | EnelX
2,6 Km
Scuole Scuole
Scuola Primaria di Burago
530 m
Scuola Secondaria di Primo Grado Don Zeno Saltini
540 m
Scuola Primaria Leonardo Da Vinci
1,5 Km
Liceo Scientifico Statale Antonio Banfi
1,7 Km
Istituto Tecnico Industriale Statale Albert Einstein
1,7 Km
Farmacia Farmacia
Parafarmacia Esselunga
950 m
Farmacia
1,5 Km
Parafarmacia
1,6 Km
Farmacia Perego
2,2 Km
Farmacity
2,6 Km
Ospedali Ospedali
Ospedale di Vimercate
2,1 Km
Supermercati Supermercati
Esselunga
950 m
Il Gigante
1,7 Km
Carrefour Express
2,3 Km
LD Market
2,8 Km
Negozi Negozi
Seconda Strada
1,1 Km
Outlet Marzotto
1,4 Km
Shop Time
1,5 Km
Negozi
1,6 Km
Caporiccio
1,6 Km
Bar Bar
Vesper
1,4 Km
La Locomotiva
1,5 Km
Totem Plaza Cafè
1,5 Km
Cube
1,6 Km
Lounge Bar
1,6 Km
Ristoranti Ristoranti
Ristorante Da Aldino
290 m
Pizza Club No Limits Vimercate
1,3 Km
L'angolo del Moriano
1,3 Km
Ristorante San Valentino
1,4 Km
Spiedonny
1,5 Km
Mostra tutto

Caratteristiche

Rif.:
61118559
Piano:
Seminterrato di 3
Totale piani:
3
Box:
1
Condizionamento:
Assente
Ascensore:
No
Mostra tutto
Prezzo Prezzo
€ 1.100 / mese
Spese annue Spese annue
€ 1.200

Altre caratteristiche

Descrizione dei locali
Bagno Cieco

Classe Energetica

E
E
E
E
E
E
E
E
E
EP globale non rinnovabile:
357.05 kW h/m² anno
EP globale rinnovabile:
0.00 kW h/m² anno
EP invernale del fabbricato:
EP estiva del fabbricato:
Anno di costruzione:
1975
Riscaldamento:
Autonomo
Tipo impianto:
A radiatori
Tipo alimentazione:
Metano

Ti interessa visionare l'immobile?

Fissa un appuntamento  Fissa un appuntamento

Richiedi informazioni

Clicca su Leggi per aprire l'informativa
* Questi campi sono obbligatori
Affiliato
Industriale Vimercate Srl
Via Lecco, 95 20864 Agrate Brianza (MB)

Il nostro staff


  • Francesca Cucchi
    Coordinatrice

  • Stella Fumagalli
    Coordinatrice

  • Davide Migliavacca
    Collaboratore

  • Marco Presta
    Collaboratore

  • Andrea Pedrocchi
    Affiliato
Via Lecco, 95 20864 Agrate Brianza (MB)
Zona: Vimercate
Mostra su mappa
Affiliato
Industriale Vimercate Srl
Via Lecco, 95 20864 Agrate Brianza (MB)

2026 Tecnocasa Franchising S.p.A. - P. IVA 08365160152 - Via Monte Bianco 60/A 20089 Rozzano (MI). Ogni agenzia ha un proprio titolare ed è autonoma. Privacy policy | Policy utilizzo | Cookie policy