Ufficio in affitto

Bernareggio, Via F. Prinetti
€ 2.700 / mese
1 locale 1 locale
250 Mq 250 Mq
2 bagni 2 bagni

Ufficio in affitto

Bernareggio, Via F. Prinetti

Descrizione annuncio

PER MAGGIORI INFORMAZIONI ED APPUNTAMENTI CHIAMA 039 636 11 75

UBICAZIONE E CONTESTO

L'ufficio proposto esclusivamente in locazione si trova nel centro del Comune di Bernareggio. Esternamente all’ufficio sono presenti circa una decina di posti auto pubblici.

DESCRIZIONE E PARTICOLARITA'

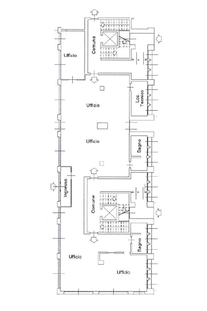
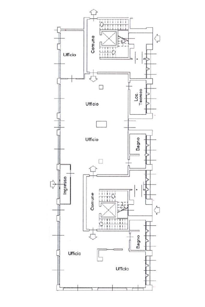
Ufficio di circa 250 metri quadrati in buone condizioni - Magazzino di circa 45 metri quadrati - Disposto al piano terra di una struttura condominiale - 2 servizi igienici (di cui 1 a norma disabili) - 15 vetrine fronte strada - 1 posto auto riservato e 1 box di circa 30 metri quadrati - IMPIANTI E DOTAZIONI: Impianto di riscaldamento e di condizionamento autonomo, impianto elettrico e di illuminazione, impianto di allarme e di videosorveglianza, antincendio ad estintori e idranti, rilevatori antincendio, anello antincendio, posizione ad angolo, ventilazione meccanica e uscita di emergenza.

ATTIVITA’ COMPATIBILI CON L’IMMOBILE: Studio professionale o attività di ufficio

ATTIVITA’ NON IDONEE: Attività commerciali

CONDIZIONI DI LOCAZIONE

Contratto commerciale di 6 anni + 6 anni - Recesso anticipato con preavviso di 6 mesi - Deposito cauzionale di 3 mesi - Pagamento mensile - Spese condominiali di circa 4.000€ / annui (compreso la pulizia delle parti comuni, il corsello box e le luci del box) - Immobile disponibile da subito

Mostra tutto

Nelle vicinanze

Trasporto pubblico Trasporto pubblico
Carnate Usmate
Carnate Usmate
2,5 Km
Bernareggio - Via Prinetti
Bernareggio - Via Prinetti
210 m
Bernareggio - Matteotti/Galvani
Bernareggio - Matteotti/Galvani
210 m
Scuole Scuole
Scuola Media Statale Leonardo Da Vinci
420 m
Scuola elementare
550 m
Scuola elementare di Villanova
1,6 Km
Scuola Primaria di Ronco Briantino
1,8 Km
Istituto Comprensivo Montessori
1,9 Km
Farmacia Farmacia
Parafarmacia Prinetti
280 m
Parafarmacia Conad
1,1 Km
Farmacia
1,4 Km
Farmacia Villanova
1,5 Km
Ranieri
2,1 Km
Supermercati Supermercati
Supermercato Big
650 m
Conad
1,1 Km
Sigma
2,0 Km
Eurospin
2,2 Km
Negozi Negozi
L'angolo del Pane
70 m
Vestinfiaba
270 m
Da Federico Alimentari
350 m
SISA
1,3 Km
Negozi
1,9 Km
Bar Bar
Bar
350 m
Bar del Centro
2,1 Km
La Sosta
2,5 Km
Spritz Bar
2,5 Km
Ristoranti Ristoranti
La Tana della Pizza
170 m
Osteria Rosso di Sera
190 m
Indirizzo Pizza e Dintorni Hoplà
270 m
Il Peperoncino
300 m
Bue Farina
1,1 Km
Mostra tutto

Caratteristiche

Rif.:
61206763
Piano:
Terra di 2
Totale piani:
2
Box:
1
Condizionamento:
Autonomo
Ascensore:
No
Mostra tutto
Prezzo Prezzo
€ 2.700 / mese
Spese annue Spese annue
€ 4.000

Altre caratteristiche

Descrizione dei locali
Bagno Con Finestra

Classe Energetica

D
D
D
D
D
D
D
D
D
EP globale non rinnovabile:
375.95 kW h/m² anno
EP globale rinnovabile:
375.95 kW h/m² anno
EP invernale del fabbricato:
EP estiva del fabbricato:
Anno di costruzione:
1960
Riscaldamento:
Autonomo
Tipo impianto:
Ad aria
Tipo alimentazione:
Altro

Ti interessa visionare l'immobile?

Fissa un appuntamento  Fissa un appuntamento

Richiedi informazioni

Clicca su Leggi per aprire l'informativa
* Questi campi sono obbligatori
Affiliato
Industriale Vimercate Srl
Via Lecco, 95 20864 Agrate Brianza (MB)

Il nostro staff


  • Francesca Cucchi
    Coordinatrice

  • Stella Fumagalli
    Coordinatrice

  • Davide Migliavacca
    Collaboratore

  • Marco Presta
    Collaboratore

  • Andrea Pedrocchi
    Affiliato
Via Lecco, 95 20864 Agrate Brianza (MB)
Zona: Vimercate
Mostra su mappa
Affiliato
Industriale Vimercate Srl
Via Lecco, 95 20864 Agrate Brianza (MB)

2026 Tecnocasa Franchising S.p.A. - P. IVA 08365160152 - Via Monte Bianco 60/A 20089 Rozzano (MI). Ogni agenzia ha un proprio titolare ed è autonoma. Privacy policy | Policy utilizzo | Cookie policy